


Fotos
Cobertura
Vila Nova Conceição, São Paulo
Valor sob consulta
Condomínio: R$ 4.800 /mês
IPTU 10x de R$ 1.800
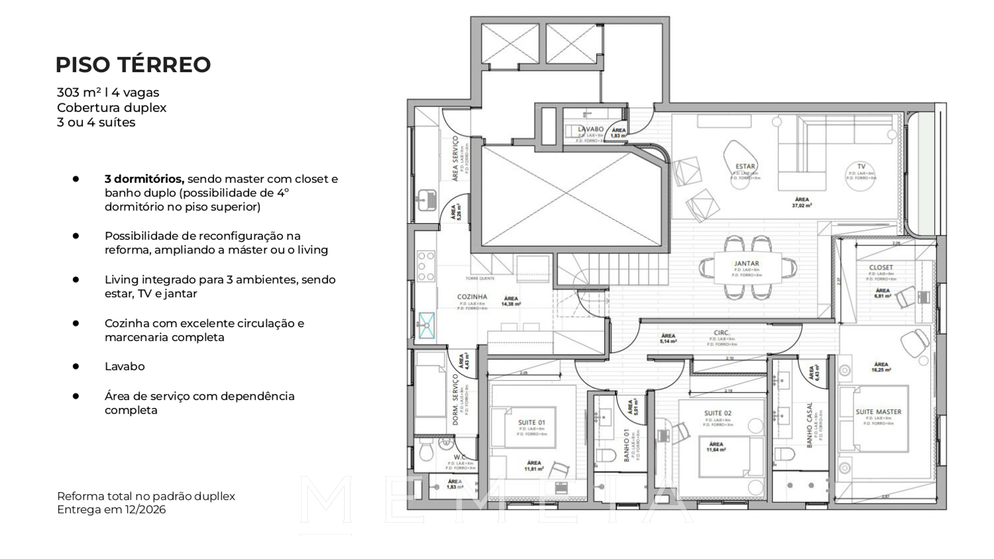
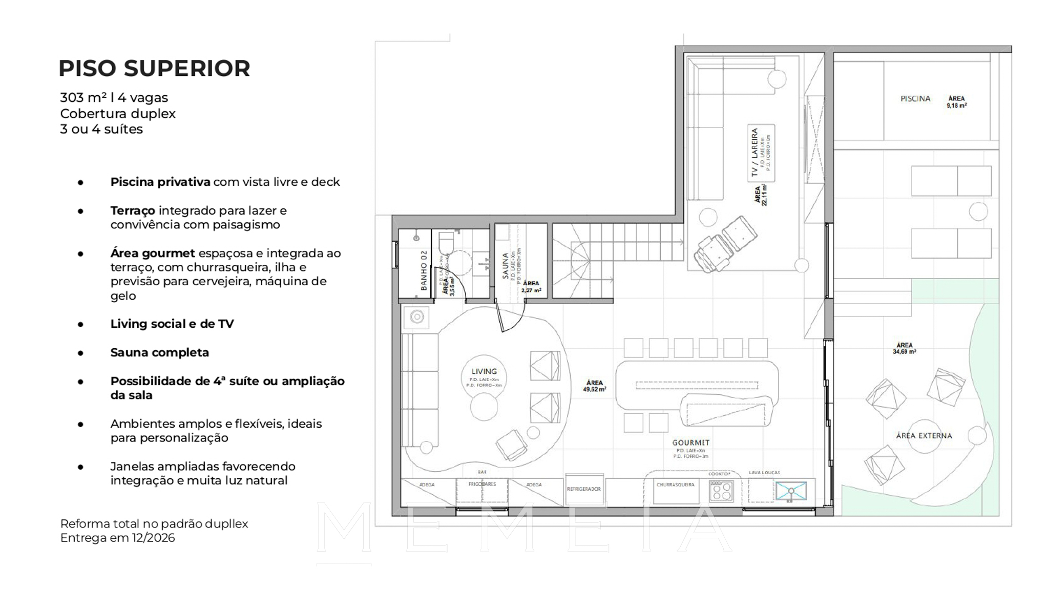
Área útil
303 m²
Quartos
04
Suítes
03
Vagas
04
Com espaços generosos e planta bem distribuída, esta cobertura desfruta de uma vista livre e verde, oferecendo a base ideal para um projeto exclusivo e verdadeiramente personalizado. A estrutura do condomínio, de essência clássica, somada ao charme de uma das localizações mais nobres da cidade, compõe o cenário para uma experiência residencial singular. O condomínio oferece lazer completo e passa por uma renovação integral. A cobertura também está em reforma total, com entrega prevista para 12/ 2026.
Detalhes do imóvel
Area gourmet
Piscina
Sauna
Áreas Comuns
Academia
Brinquedoteca
Espaço Gourmet
Quadra poliesportiva
Salão de jogos


